Au cœur du quartier Rivetoile
CUBE, sur l’axe routier reliant la France à l’Allemagne, est un immeuble emblématique de bureaux.
Sa structure bois en R+7 est signée par les architectes BAUMSCHLAGER EBERLÉ
et LIONEL DEBS ARCHITECTURE.
CUBE s’appuie sur l’expertise du spécialiste de la construction bois MATHIS SAS
pour la réalisation d’une structure ossature bois posée sur un noyau central en béton.
Ses mensurations de 30x30x30 mètres lui confèrent toute la puissance de sa forme géométrique
et lui permettent une grande liberté d’aménagement.
Avec un RDC très convivial comprenant un pôle restauration dans un espace de co-working connecté
et un amphithéâtre à usage partagé, l’immeuble sort du lot.
Les vastes terrasses et coursives complètent la longue liste
des qualités intrinsèques d’usage de cet immeuble en bois.
La réponse aux besoins des grands utilisateurs
Immeuble densifiable
Jusqu’à 1 poste pour 10 m² de surface de bureaux.
Places de parking en intérieur et extérieur
Au sous-sol, 59 places de parking et deux locaux deux-roues sécurisés sont intégrés au projet ainsi que 10 places de parking publiques et deux aires vélos en extérieur.
Flexibilité
Division à partir de 321 m² jusqu’à 669 m².
Convivialité au RDC
Le rez-de-chaussée très convivial accueille un amphithéâtre mutualisé et un espace M’eat & Co d’environ 217 m² ouvert toute la journée. C’est un lieu de respiration et d’échanges, modulable et privatisable, qui accompagnera tous les moments de votre quotidien : pauses méridiennes, réunions improvisées ou événements conviviaux. Des douches et vestiaires sont également prévues pour les cyclistes et les sportifs.
Le socle est perméable, pénétrable, modulable et toujours actif et vivant. Ses espaces constituent une large vitrine s’ouvrant sur la ville et l’espace public.
Terrasses et coursives accessibles
Parce que la qualité de vie au travail est essentielle, CUBE met à disposition plus de 750 m² d’espaces extérieurs. Chaque étage dispose de coursives et balcons, tandis que le 6ᵉ étage accueille deux vastes terrasses aménagées, prolongements naturels des espaces de travail.
Ces lieux de respiration favorisent détente, créativité et équilibre, contribuant à la santé et au bien-être des occupants.
Terrain de sport
Au pied de l’immeuble, un terrain multisports familial, en libre accès, agrémenté d’espaces verts, vient améliorer la vie des occupants et des habitants du quartier.
Lots divisibles à partir de
321 m²
Duplex allant jusqu’à
669 m²
Terrasse privative en R+6
53 m²
Une grande modularité des espaces de travail
CUBE, fruit d’une approche actuelle de l’immobilier de bureaux contemporains, recrée parfaitement les conditions d’épanouissement dont ont besoin les entreprises d’aujourd’hui pour relever leurs défis. La configuration des plateaux assure l’optimisation des surfaces tout en préservant une lumière naturelle abondante ainsi qu’une très grande souplesse d’aménagement.
CUBE intègre tous les services recherchés en termes de confort de l’utilisateur sans négliger l’efficacité des espaces de travail.
Les temps de déplacements sont optimisés avec des circulations verticales et horizontales simples, fonctionnelles et rapides.
Bordés de grandes coursives et terrasses accessibles, les plateaux, sont conçus pour répondre aux modes d’organisation les plus divers : flex office, open spaces, bureaux cloisonnés, individuels ou partagés, salles de réunion, salons de réception…
Les NWoW (New Ways of Working) s’intègrent facilement sur les 5.093 m² afin de permettre à chaque utilisateur d’adapter au mieux, au fil de la journée, sa pratique professionnelle en fonction des tâches à réaliser.
Une opération de 5.093 m²
Plus de 750 m² d'espaces extérieurs
et 69 places de parking dont 10 publiques
Le sous-sol accueille 59 places de parking
dont 2 PMR et 12 IRVE
• Espace de restauration/coworking : 216,80 m²
• Espace amphithéâtre : 120,00 m²
• Sanitaire amphithéâtre : 4,20 m²
• Douches et vestiaires : 24,70 m²
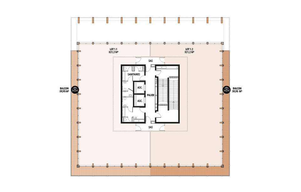
Surface totale locative : 642,4 m²
• Lot 1.1 : 321,20 m² – balcons/coursives : 39,95 m²
• Lot 1.2 : 321,20 m² – balcons/coursives : 39,95 m²
Surface totale locative : 783,8 m²
• Lot 4.1 : 391,9 m² – balcons/coursives : 51,5 m²
• Lot 4.2 : 391,9 m² – balcons/coursives : 51,5 m²
Surface totale locative : 783,8 m²
• Lot 5.1 : 391,9 m² – balcons/coursives : 51,5 m²
• Lot 5.2 : 391,9 m² – balcons/coursives : 51,5 m²
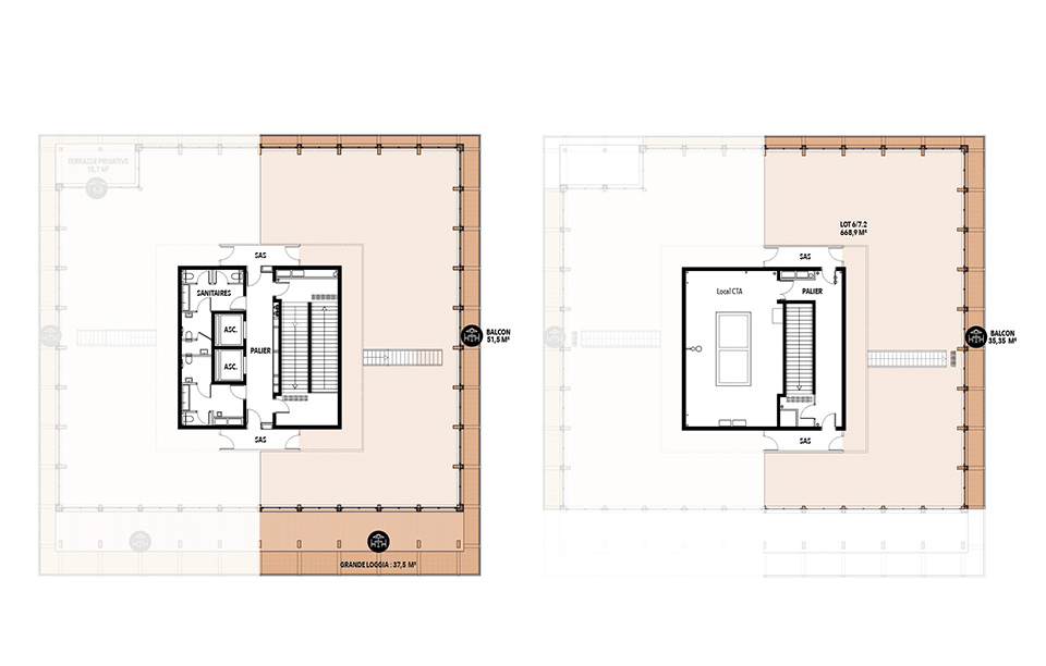
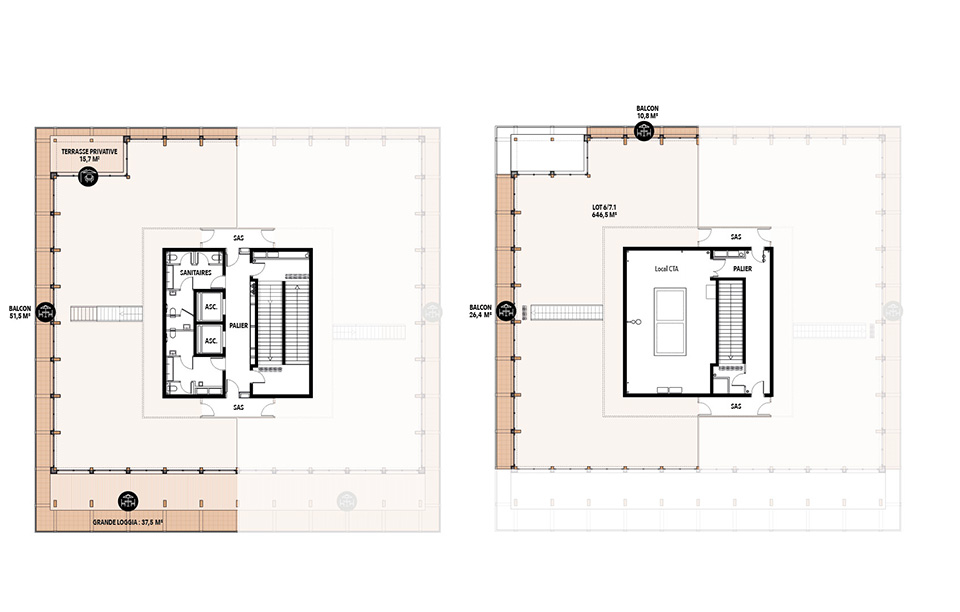
Surface totale locative lot 6/7.1 : 646,5 m²
• Lot 6/7.1 : 646,5 m² – balcons/coursives : 88,7 m² – terrasse privative et loggia : 53,2 m²
Surface totale locative lot 6/7.2 : 646,5 m²
• Lot 6/7.2 : 668,9 m² – balcons/coursives : 86,85 m² – terrasse privative et loggia : 37,5 m²
Plans du projet
Visionnez ou téléchargez le plan masse, le plan du sous-sol, le plan du rez-de-chaussée et ceux des 7 étages.
"Plus qu’une simple construction, ce bâtiment porte dans ses volumes et ses formes l’héritage et l’esprit du site."
Au regard des dimensions de sa parcelle, oser la profondeur mais aussi la compacité tout en offrant le maximum de vues vers l’extérieur était un défi.
Des balcons extérieurs à tous les niveaux permettent à chaque occupant de profiter d’espaces de respiration et de belles perspectives sur le quartier du Danube. Le rapport avec le naturel se poursuit ainsi depuis le bois, matériaux choisi pour la réalisation de CUBE jusqu’à l’usage. Il y a une envie de renouer avec la nature qui répond à un souhait de mieux-être, mais aussi de faire entrer l’extérieur à l’intérieur pour être en connexion avec son environnement.
Le concept du projet est de construire un bâtiment solitaire du fait de sa morphologie, une sculpture urbaine, ne créant ni avant ni arrière vis-à-vis de la ville. Son volume parfait crée une forme architecturale spécifique, clairement identifiable, comme un Landmark* pour le site.
LAZARD GROUP, en collaboration avec sa maîtrise d’œuvre, s’emploie à développer des projets bas carbone innovants afin de contribuer à l’amélioration de l’environnement urbain et à la protection du climat.
* Point de repère.
"L’architecture est en premier lieu un travail d’imagination entre l’architecte et ses partenaires."
“LDA est un bureau d’architecture engagé dans la création de nouvelles possibilités pour nos vies et usages quotidiens.
Notre conception s’engage pour une architecture intemporelle, intimement adaptée à son contexte et pour chaque environnement.
Des formes simples et fortes, une matérialité affirmée et sensorielle, une approche low-tech pour une architecture modeste mais singulière.”
Lionel Debs, architecte LDA.
"En fin de compte, il n'y a que trois façons dont l'architecte peut s'exprimer : à travers la géométrie, les matériaux et la lumière."
Basée sur les valeurs d’authenticité, de méthodologie et de poésie, c’est cette approche qui élève nos projets à travers le monde au rang d’énoncés architecturaux. Nos bâtiments sont authentiques par leur sensibilité à leur environnement local et leur pertinence durable ; ils sont à la fois sensibles et représentatifs des milieux dans lesquels ils se trouvent. Ils sont également durables au sens le plus large du terme. Allant bien au-delà des enjeux énergétiques et environnementaux, notre notion de durabilité englobe des valeurs culturelles, sociales et esthétiques. Nous pensons en siècles, pas seulement en décennies. Nous aspirons à l’élégance, à distiller des idées à la recherche de la simplicité et de l’intemporalité, mais plus encore nous nous efforçons d’aller sous la surface, de trouver la poésie dans l’architecture.
Baumschlager Eberle Architectes
"En fin de compte, il n'y a que trois façons dont l'architecte peut s'exprimer : à travers la géométrie, les matériaux et la lumière."
“Basée sur les valeurs d’authenticité, de méthodologie et de poésie, c’est cette approche qui élève nos projets à travers le monde au rang d’énoncés architecturaux. Nos bâtiments sont authentiques par leur sensibilité à leur environnement local et leur pertinence durable ; ils sont à la fois sensibles et représentatifs des milieux dans lesquels ils se trouvent. Ils sont également durables au sens le plus large du terme. Allant bien au-delà des enjeux énergétiques et environnementaux, notre notion de durabilité englobe des valeurs culturelles, sociales et esthétiques. Nous pensons en siècles, pas seulement en décennies. Nous aspirons à l’élégance, à distiller des idées à la recherche de la simplicité et de l’intemporalité, mais plus encore nous nous efforçons d’aller sous la surface, de trouver la poésie dans l’architecture.”
Baumschlager Eberle Architectes
